Sala Resonador Magnético

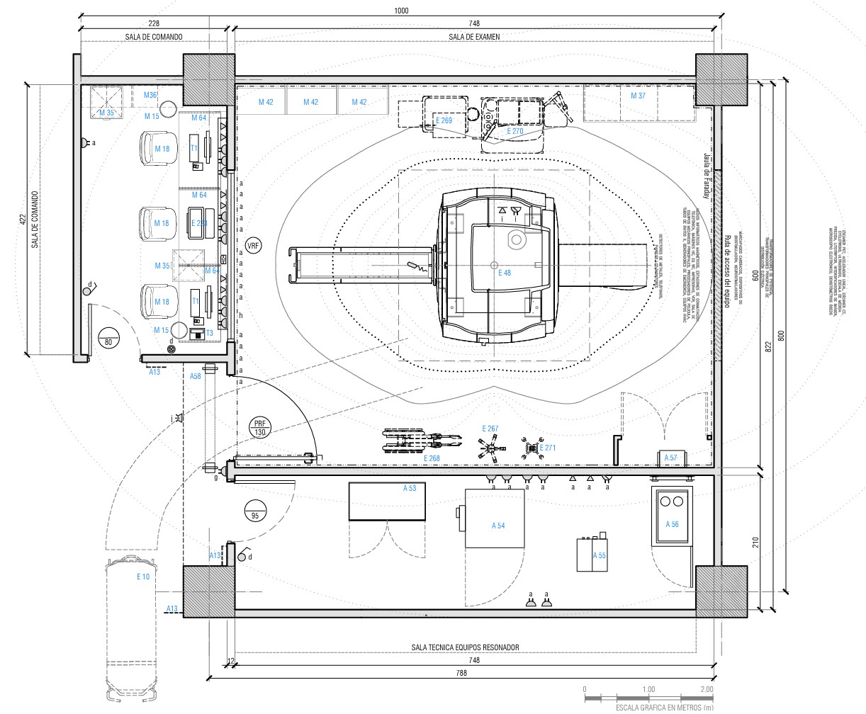
Imagen del recinto
Dimensiones de Sala
Alto de Sala (m)
2,7 metros
Ancho de Sala (m)
8,22 metros
Largo de Sala (m)
9,6 metros
Tipo de Blindaje
Blindaje electromagnético (Jaula Faraday)
Infraestructura
Área Limpia
No Requiere
Área Sucia
No Requiere
Otras Áreas
Requiere de una sala de comando con conexión a puntos de datos.
Requiere de vestidores
Agua Fría
Requiere de conexión a agua fria
Agua Caliente
Requiere de conexión a agua caliente
Alcantarillado
Requiere de conexión a alcantarillado
Agua Tratada
No Requiere
Gases Clínicos
Si requiere
Ventilación
Ventilación Mecánica
Condiciones Ambientales
Presión
No Requiere
Temperatura
18 - 24 °C
Humedad
Máx 60%
Filtro
Filtro MERV 14
Normativa Aplicable
• Decreto N°58: Norma Técnica Básica de Autorización Sanitaria para Establecimientos de Salud.
• Decreto Supremo Nº 594: Reglamento Sanitario sobre Condiciones Sanitarias y Ambientales Básicas en los Lugares de Trabajo.
• ASHRAE 170 - 2013: Ventilación de instalaciones de atención médica.
• UNE-EN 12464-1: Iluminación de los lugares de trabajo, Parte 1: Lugares de trabajo interiores.
Equipos asociados a este recinto
← Volver al listado de recintosMenú principal