Hidroterapia

Imagen del recinto
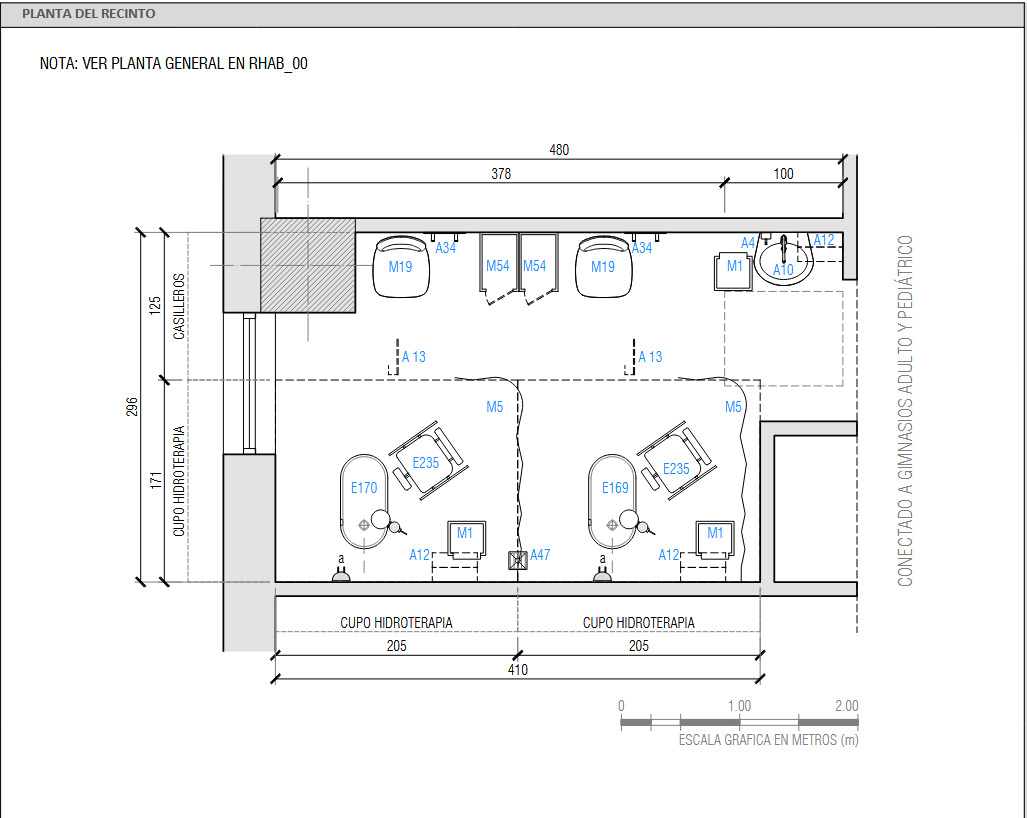
Dimensiones de Sala
Alto de Sala (m)
2,7 metros
Ancho de Sala (m)
2,96 metros
Largo de Sala (m)
4,8 metros
Tipo de Blindaje
No Requiere
Infraestructura
Área Limpia
No especificado
Área Sucia
No especificado
Otras Áreas
No especificado
Agua Fría
No especificado
Agua Caliente
No especificado
Alcantarillado
No especificado
Agua Tratada
No especificado
Gases Clínicos
No especificado
Ventilación
Ventilación Mecánica y/o natural
Condiciones Ambientales
Presión
Presión Negativa
Temperatura
22 - 26 °C
Humedad
Máx 65%
Filtro
Filtro MERV 7
Normativa Aplicable
• Decreto N°58 Norma Técnica Básica de Autorización Sanitaria para Establecimientos de salud. • Decreto Supremo Nº 594. Reglamento Sanitario sobre Condiciones Sanitarias y Ambientales Básicas en los Lugares de Trabajo • ASHRAE 170 - 2013 Ventilación de instalaciones de atención médica • UNE-EN 12464-1Iluminación de los lugares de trabajo Parte 1: Lugares de trabajo interiores • Modelo de Gestión Red de Rehabilitación. Resolución Exenta 345/2018 • Orientaciones para el desarrollo de la rehabilitación en los hospitales de la Red Pública de Salud 2018 - 2025
Equipos asociados a este recinto
← Volver al listado de recintosMenú principal